El dibujo arquitectónico es un requisito indispensable para el éxito de cualquier proyecto de construcción o reforma. Afortunadamente, ahora es más fácil que nunca crear distintos tipos de planos arquitectónicos.
Atrás quedaron los días en los que había que dibujar tediosos bocetos a mano o trabajar largas horas con un programa CAD durante días y días.
Gracias a un software de dibujo arquitectónico moderno, incluso con poca experiencia o habilidades en diseño, puedes crear dibujos de arquitectura profesionales en unas pocas horas.
En este post te contaremos todo lo que necesitas para empezar:
- Tipologías de dibujos arquitectónicos
- Una visión global del proceso de dibujo
- Sugerencia de programas de diseño arquitectónico
Conclusiones Clave
Herramientas como Cedreo facilitan la creación de dibujos arquitectónicos en 2D y 3D, incluso sin experiencia previa en programas CAD.
Los dibujos arquitectónicos son fundamentales para visualizar, planificar y construir proyectos residenciales y comerciales.
Existen más de 12 tipos principales de dibujos arquitectónicos, entre ellos: planos de planta, alzados, planos de emplazamiento y secciones transversales.
Un dibujo arquitectónico eficaz comunica con claridad la intención del diseño, las relaciones espaciales y los detalles de distribución tanto a clientes como a equipos de proyecto.
¿Qué es el Dibujo Arquitectónico?
El concepto de dibujo arquitectónico hace referencia a un boceto, plano, diagrama o esquema que comunica información detallada sobre un edificio.Los arquitectos y diseñadores crean este tipo de dibujo técnico arquitectónico durante las fases de planificación de una obra.
¿Para qué sirve el Dibujo Arquitectónico?
Los planos arquitectónicos son importantes por varias razones:
- Ayudan a los propietarios y jefes de obra a comprender el aspecto y el funcionamiento que tendrá una edificación cuando esté terminada.
- Proporcionan la información y las instrucciones necesarias para que el equipo de construcción pueda comenzar las obras y levantar la estructura.
- Un dibujo arquitectónico proporciona un registro detallado del funcionamiento interno de un edificio, lo cual es necesario para su futuro mantenimiento.
Rasgos Clave de los Dibujos Arquitectónicos Exitosos
No todos los dibujos arquitectónicos cumplen la misma función ni ofrecen el mismo nivel de calidad. Para que un plano sea realmente eficaz, ya sea para una vivienda a medida o un proyecto de construcción a gran escala, debe comunicar con claridad el diseño arquitectónico y su intención a todos los implicados.
Esto es lo que distingue a un dibujo arquitectónico de alta calidad:
- Precisión y escala: Los planos deben estar a escala y contar con medidas exactas para que los equipos de obra puedan trasladar el diseño a la realidad con total confianza.
- Intención de diseño clara: Un buen dibujo no solo indica qué construir, sino también cómo cada elemento encaja en el concepto general del proyecto.
- Distribuciones legibles: Planos limpios, con etiquetas consistentes, anotaciones claras y secciones bien definidas, garantizan una comunicación fluida entre diseñadores, operarios y otros agentes del proyecto.
- Detalles completos: Ya sea un plano de emplazamiento, un alzado o una sección, un conjunto completo de planos debe mostrar tanto la funcionalidad como la estética del diseño.
- Visuales comprensibles para el cliente: Además de ser técnicamente precisos, los planos deben ayudar a los clientes y partes interesadas a imaginar el espacio terminado. Herramientas como el software de dibujo arquitectónico de Cedreo permiten generar visualizaciones claras y fotorrealistas.
¿Qué tipos de planos puedes necesitar? Vamos a descubrirlo en la siguiente sección.
12 Tipos de Dibujo Arquitectónico:
El camino para completar un proyecto de arquitectura comienza con un conjunto detallado de esbozos arquitectónicos. Aquí encontrarás 12 ejemplos comunes de dibujo arquitectónico que puedes necesitar para distintos fines profesionales, técnicos o visuales.
1. Planos de Sitio

El plano de sitio ofrece una representación aérea de la obra y la propiedad que lo rodea. A veces, incluso sus líneas muestran edificios vecinos o infraestructuras como carreteras.
Los planos de sitio son importantes para mostrar exactamente cómo está situada la estructura de acuerdo a los límites de la propiedad.
Además, los planos del solar pueden ofrecer información detallada y dimensiones de elementos de jardinería, entradas de vehículos, patios y otros elementos exteriores.
Con un moderno software de creación de viviendas como Cedreo, puedes incluso crear planos de sitio en 3D que muestren el diseño paisajístico junto con un plano en 3D del interior de la vivienda.
Este tipo de planos de arquitectura en 3D son un buen complemento para mostrar tus propuestas.

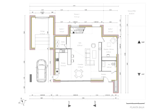
2. Planos de Planta

Una planta arquitectónica, también llamada proyección horizontal, es la representación de la distribución interna de una estructura. En dibujo técnico, existe una gran variedad de planos de planta en función del uso que se les vaya a dar.
Por ejemplo, algunos planos se hacen para mostrar elementos específicos, como sistemas eléctricos o de fontanería.
Los planos más comunes para proyectos de construcción residencial son trazados que muestran líneas y medidas detalladas entre paredes, puertas y ventanas.
La mayoría también muestra los cálculos de superficie de cada habitación. Estos tipos de planos arquitectónicos son esenciales para elaborar presupuestos y construir una casa según las especificaciones del arquitecto.
En el pasado, los planos de proyección horizontal solían limitarse a simples trazados en 2D en blanco y negro. Pero bosquejos así son difíciles de entender para muchos clientes.
Ahora, con programas como Cedreo, se pueden crear planos en 3D con mobiliario, suelos, pintura y decoración. Esto ayuda a los clientes a entender el proyecto y a entusiasmarse con él.

3. Planos de Corte

Los planos de corte son trazados bidimensionales que muestran una combinación de elementos visibles y ocultos de una construcción. Imagina que has cortado un fragmento de la construcción por la mitad a lo largo de un plano vertical y estás viendo el interior. Eso es una sección transversal o plano de corte.
Los dibujos arquitectónicos con planos de corte son útiles para mostrar cómo están unidas determinadas partes de un inmueble. Pueden mostrar cosas como:
- Cómo deben construirse los muros
- Cómo encajan las ventanas en una sección de pared
- Las transiciones estructurales de una planta a otra.
4. Dibujos de Fachadas

Un dibujo de fachada arquitectónica o alzado se crea a partir de un plano vertical que mira directamente al edificio. Los perfiles de fachada más comunes son los que muestran el exterior de la edificación desde la parte delantera, trasera y lateral.
Los arquitectos también pueden crear alzados similares a los planos de corte que muestran una vista interior desde un plano vertical. Estos ayudan a mostrar una vista en 2D de armarios, puertas y ventanas.
5. Planos de Terminación
Este tipo de dibujo arquitectonico muestra vistas detalladas de los acabados. Con ellos, los arquitectos pueden comunicar información detallada sobre la tipología de revestimientos del suelo, molduras, texturas y colores.
6. Dibujos de Paisajes

Los planos de jardines son muy habituales en los proyectos de construcción residencial. Son parecidos al plano de sitio mencionado antes, pero muestran más conceptos y detalles relacionados con el paisajismo urbano y la vegetación.
Es importante tener algunos planos de paisaje en 2D para mostrar la disposición general y las medidas. Pero la aplicación de técnicas de dibujo en 3D también son muy útiles para entender el aspecto e incluso color de la vegetación en la vida real.
Con un programa como Cedreo, puedes crear representaciones en 3D con un acabado profesional, que muestren el paisaje al atardecer con la iluminación exterior encendida.

7. Planos de Detalle
Los planos de detalles arquitectónicos, también conocido como dibujo constructivo, suelen ser una combinación de secciones transversales y vistas de cerca de una pequeña parte del inmueble. Son muy importantes para mostrar cómo se unen varios elementos en partes críticas de la obra.
En algunos casos, los planos de detalle de ingeniería muestran cómo deben ensamblarse las vigas de hormigón armado. Los de arquitectura muestran elementos de diseño personalizados o uniones complejas, como aleros de tejado y aberturas de ventanas.
8. Planos de Excavación
Los planos de excavación proporcionan información detallada sobre zanjas, fosos, pozos, túneles y otras formas de extracción de tierra. En estos planos, los arquitectos también pueden mostrar detalles importantes sobre el proceso de excavación.
9. Planos de Ubicación
Los planos de ubicación pueden incluir una combinación de planos de planta, alzados y secciones transversales. A veces llamados “planos de disposición general”, estos planos arquitectónicos muestran la ubicación de los distintos elementos de construcción.
10. Renders 3D

Muestran la estética y el flujo general de un espacio. En el pasado, los arquitectos y diseñadores creaban bocetos a mano que mostraban vistas en 3D del proyecto acabado. Hoy en día, los arquitectos utilizan software de diseño y renderizado en 3D como Cedreo para hacer este trabajo por ellos.
Por ejemplo, con Cedreo puedes crear visualizaciones en 3D que muestran el interior de una casa con acabados, mobiliario y efectos de iluminación precisos.
Este tipo de planos son realmente importantes para impresionar a los clientes y aumentar las ventas.
11. Planos Eléctricos

Los planos eléctricos muestran la distribución del cableado, los puntos de luz, enchufes, interruptores y otros componentes eléctricos de un edificio. Al igual que otros planos de instalaciones, suelen superponerse al plano de planta para garantizar una colocación precisa.
12. Planos del Tejado
Los planos de tejado ofrecen una vista en planta desde arriba del diseño del tejado. Incluyen detalles como pendientes, limatesas, limahoyas, buhardillas, materiales y más. Son esenciales para que los constructores puedan ejecutar con precisión cubiertas complejas a partir del diseño.
Ahora que conoces algunas de las tipologías más comunes de planos arquitectónicos, ¿cómo encajan en el proceso general de planificación del proyecto?
Descúbrelo a continuación.
Estilos de Dibujo Arquitectónico
¿Quieres saber cómo dibujar planos de arquitectura? Aquí tienes 3 de los estilos de dibujo arquitectónico más comunes.
Bocetos Arquitectónicos
Aunque hoy en día los ordenadores hacen gran parte del trabajo pesado, los arquitectos siguen confiando en el dibujo arquitectónico a mano alzada para desarrollar ideas en las primeras fases del diseño.
Los bocetos arquitectónicos (aunque se dibujen con un programa de ilustración de ordenador) pueden ser útiles durante las fases iniciales de planificación de un proyecto.
Son una forma fácil y rápida de plasmar algunas ideas en papel para presentarlas a un cliente o a tu equipo.
Sin embargo, con programas de diseño de casas fáciles de usar, estos bocetos pierden importancia rápidamente. Esto se debe a que programas como Cedreo te permiten diseñar una casa entera en el tiempo que te llevaría hacer un solo boceto dibujado a mano, aunque no tengas conocimientos.
Planos técnicos (Blueprints)
Los blueprints son dibujos arquitectónicos técnicos que, originalmente, se imprimían sobre papel azul con líneas blancas, de ahí su nombre. Hoy en día, el término se usa de forma más general para referirse a cualquier conjunto de planos detallados que se utilizan en obra para guiar el proceso de construcción.
Estos documentos incluyen desde planos de planta y alzados hasta esquemas eléctricos y especificaciones estructurales. Son esenciales para convertir un diseño arquitectónico en una estructura real.
Lo que diferencia a los blueprints de bocetos o renders conceptuales es su nivel de detalle y precisión. Mientras que los bocetos sirven para transmitir ideas en las primeras fases del diseño y los renders 3D aportan atractivo visual para el cliente, los blueprints son los documentos técnicos que utilizan los equipos de obra para ejecutar el proyecto.
Renderizados 3D
Los renderizados 3D son representaciones generadas por ordenador a partir de planos y diseños introducidos en un software especializado.
En lugar de dibujar manualmente cada vista, textura, sombra o efecto de iluminación, introduces los parámetros del diseño arquitectónico y el programa genera automáticamente una imagen realista.
El resultado son imágenes fotorrealistas que, como cualquier ilustración arquitectónica, permiten al cliente visualizar cómo quedará el proyecto una vez terminado. Es una de las formas más eficaces de impresionar al cliente y presentar una propuesta clara y coherente.
Algunos programas requieren conocimientos avanzados de modelado 3D y ajustes manuales. Pero con herramientas como Cedreo, es posible obtener imágenes profesionales sin experiencia previa en diseño.
Escalas de Dibujo Arquitectónico Más Comunes
Cuando creas y lees dibujos arquitectónicos, es importante que entiendas las escalas de dibujo.
Básicamente, una escala te ayuda a comprender la relación entre el tamaño de algo en el dibujo y el tamaño de ese mismo objeto en la vida real.
Es importante elegir la escala en función del tamaño de lo que estás dibujando y del tamaño del papel que vas a utilizar para imprimirlo.
He aquí algunas de las proporciones más comunes según las normas de dibujo arquitectónico.
1:500 (1″=40’0″) – Plano de sitio grande
1:250 (1″=20’0″) – Plano del solar
1:200 (1/16″=1’0″) – Plano de emplazamiento pequeño
1:100 (1/8″=1’0″) – Planos de planta, alzados y secciones
1:50 (1/4″=1’0″) – Pequeños planos de planta, alzados y secciones
1:20 (3/4″=1’0″) – Planos de habitaciones y alzados interiores
1:10 (1 1/2″=1’0″) – Carpintería y algunos detalles de construcción
1:5 (3″=1’0″) – Detalles constructivos detallados
Cómo Crear un Dibujo Arquitectónico Online
¿Listo para crear un dibujo arquitectónico para un proyecto en línea? Deja a un lado el lápiz y el papel. Estamos en el siglo XXI, así que puedes utilizar un programa para diseñar casas para esta tarea.
Y no te preocupes, no tienes que ser un experto en CAD. Sólo tienes que encontrar el programa de diseño de viviendas adecuado, con una interfaz fácil de usar y las funciones que necesitas.
Los programas modernos como estos han simplificado el proceso de diseño y facilitado la captación de nuevos clientes con presentaciones de proyectos impresionantes.
Este medio supone un gran aumento en la eficiencia en el trabajo para distintos profesionales, entre ellos, el arquitecto proyectista, cuya profesión consiste en llevar a cabo la redacción del proyecto, presupuestos y estimaciones.
Veamos cómo hacer el dibujo arquitectónico de una vivienda residencial con Cedreo, un programa de diseño de viviendas potente pero fácil de usar.
Define los Límites de la Propiedad

Crea una capa de terreno y utiliza la herramienta de dibujo para trazar las líneas que delimitan la propiedad. Si ya has importado o dibujado el diseño de un inmueble, puedes girar la capa de terreno para asegurarte de que el edificio está colocado correctamente.
Dibuja Muros Exteriores e Interiores

Utiliza el modo de dibujo continuo de Cedreo para dibujar los muros. Si quieres importar un plano existente, simplemente importa el plano, ajusta la escala y luego traza sobre él. A medida que trabajes, verás las medidas actualizadas para garantizar la precisión.
Añade Sótano o Niveles
Cedreo facilita la duplicación del tamaño de la planta baja. Cuando estés trazando el dibujo, ve a la herramienta de niveles. A continuación, selecciona “añadir sótano” o “añadir nivel”. Como crea un duplicado, es fácil ver dónde añadir cosas como escaleras.
Añade Escaleras
Para casas de varios niveles, sólo tienes que crear una abertura y luego arrastrar y soltar el modelo de escalera deseado desde la pestaña de mobiliario.
Incluye Aberturas de Pared y Ventanas
Arrastra y suelta puertas, ventanas y otros tipos de huecos de pared. A continuación, utiliza las herramientas de personalización de Cedreo para definir el tamaño, estilo y moldura de cada hueco.
Cedreo también te ayuda a ahorrar tiempo permitiéndote aplicar las mismas personalizaciones a todas las aberturas del mismo tipo.
Etiqueta Habitaciones
Añade etiquetas para la cocina, el salón, los dormitorios, etc.
Añade Medidas
Aunque algunas medidas y cálculos de superficie se añaden automáticamente, también puedes personalizar cuáles aparecen en los dibujos arquitectónicos 2D finales. Sólo tienes que ir a la pestaña plano y seleccionar presupuesto. Allí puedes eliminar o añadir medidas adicionales cuando sea necesario.
Incluye Mobiliario y Decoración

Uno de los aspectos más destacados de los programas modernos de diseño de viviendas es la posibilidad no sólo de crear un plano en 2D, sino también de poder decorarlo en 3D. Cedreo lo hace realmente fácil.
Todo lo que tienes que hacer es arrastrar y soltar muebles, objetos decorativos y materiales de la biblioteca de diseño. Con miles de opciones para elegir, sabes que podrás amueblar el espacio según los gustos de tu cliente.
Añade el Tejado
Ve a la pestaña tejado, donde encontrarás todo lo que necesitas para crear tu tejado.
Con todos los ángulos, los tejados pueden ser complicados. Afortunadamente, Cedreo te lo pone fácil sin dejar de ofrecerte la posibilidad de crear un tejado personalizado para cada vivienda.
Genera Imágenes 3D

Con Cedreo, puedes generar al instante renders 3D fotorrealistas que ayudan a tus clientes a visualizar el espacio terminado. Solo tienes que ir a la sección Visual HD, elegir el ángulo de cámara y la configuración de iluminación que prefieras, y hacer clic en “Solicitar render”. En solo unos minutos, obtendrás una imagen de alta calidad que muestra el mobiliario, los materiales y los efectos de luz con todo lujo de detalle.
Crea Documentos de Presentación

Combina tus planos 2D, renders 3D y cálculos de superficies en un único documento listo para presentar al cliente. Dirígete a la sección Carpeta, selecciona “Crear nuevo documento” y arrastra los elementos que quieras incluir. También puedes personalizar la maquetación, añadir el logotipo de tu empresa e incluir notas de texto, todo dentro de un mismo flujo de trabajo optimizado.
Así que ahí tienes cómo hacer un dibujo arquitectónico con un programa como Cedreo. Pero, ¿cómo es Cedreo en comparación con otros programas de dibujo arquitectónico?
En la siguiente sección compararemos los 3 mejores programas.
3 Mejores Programas de Dibujo Arquitectónico
Echemos un vistazo rápido a 3 de los programas más populares utilizados para crear dibujos arquitectónicos. Compara sus características y descubre cuál es el más adecuado para ti.
Cedreo

Cedreo está diseñado para simplificar todo el proceso de diseño de viviendas, desde la planificación inicial hasta la presentación de ideas al cliente, y es accesible tanto para profesionales como para personas que se inician en este ámbito. A diferencia de los programas CAD complejos, Cedreo es extremadamente fácil de usar. De hecho, la mayoría de los usuarios pueden crear un conjunto completo de planos, incluyendo planos 2D y visualizaciones 3D, en solo unas pocas horas.
Funciones de dibujo arquitectónico:
- Importa planos existentes
- Dibuja una habitación en cuatro clics
- Planos 2D y planos 3D
- Obtén automáticamente medidas actualizadas mientras dibujas
- Potentes funcionalidades de diseño personalizado
- Modelado de terreno en 3D
- Amplia biblioteca de mobiliario con más de 7.000 componentes
- Ahorra tiempo reutilizando planos de proyectos anteriores
- Software basado en la nube no atasca tu ordenador
- Renderizados de calidad fotográfica en 3D con 1 clic
- Equipo de soporte de primera clase para ayudarte a tener éxito
- Tutoriales en vídeo, con una amplia selección de vídeos explicativos que muestran paso a paso cómo aprovechar cada función del software.
SketchUp

SketchUp es un programa de modelado 3D muy popular que algunos profesionales utilizan para crear dibujos arquitectónicos. En esencia, SketchUp está pensado para modelado en 3D, por lo que resulta más útil si ya tienes cierta experiencia previa con este tipo de software. Afortunadamente, es posible ampliar sus funcionalidades mediante complementos o extensiones de pago para generar planos técnicos más detallados. Sin embargo, esta opción puede encarecerse rápidamente.
Funciones de dibujo arquitectónico:
- Capacidad para crear cualquier objeto imaginable
- Gran biblioteca de mobiliario generado por el usuario que puedes añadir a tus diseños
- Crea renderizados HD con la ayuda de plugins adicionales
- Crea dibujos técnicos de detalles arquitectónicos
- Buena base de tutoriales creados por la comunidad de usuarios.
AutoCAD

AutoCAD ha sido el estándar de oro del software CAD durante mucho tiempo.
Aunque algunos arquitectos utilizan este programa para crear dibujos arquitectónicos, puede resultar tedioso. Y como es un programa tan complejo, tiene además una curva de aprendizaje muy elevada cuando se trata de diseñar casas.
Funciones de dibujo arquitectónico:
- Todas las herramientas que necesitas para diseñar cualquier cosa de forma detallada
- Bibliotecas de símbolos descargables para crear dibujos mecánicos
- Se integra con otros programas para crear renderizados 3D
- Funciones avanzadas de gestión de documentos
- Útil para proyectos comerciales de gran escala.
Empieza a Crear Dibujos Arquitectónicos Profesionales
¿Listo para empezar a crear planos arquitectónicos para tu próximo proyecto? Toma la decisión inteligente y utiliza Cedreo.

Sus potentes funcionalidades, su interfaz fácil de usar y sus impresionantes renderizados en 3D garantizan una mayor eficacia en el desarrollo y presentación de proyectos.
Ningún otro programa te ahorra tanto tiempo y molestias a la vez que mejora la presentación de tus servicios y te ayuda a conseguir más clientes.
Con una prueba gratuita y sin compromiso, no tienes nada que perder. ¡Regístrate en Cedreo hoy mismo!
Preguntas Frecuentes sobre Dibujos Arquitectónicos
¿Cuáles son los principales tipos de dibujo arquitectónico?
Los principales tipos de dibujo arquitectónico se clasifican según la vista o el propósito del plano. Entre ellos se encuentran las plantas arquitectónicas, que representan una vista superior del edificio como si se hiciera un corte horizontal, mostrando la distribución de espacios, mobiliario, puertas y ventanas. También están los cortes o secciones, que permiten ver el edificio en vertical, revelando cómo se relacionan entre sí los diferentes niveles y elementos estructurales. Las fachadas muestran la vista exterior de cada lado del edificio, detallando el diseño, los materiales y las proporciones. Además, existen los planos estructurales, que detallan columnas, vigas y cimentaciones; los planos de instalaciones, que representan las redes eléctricas, de fontanería o climatización; los detalles constructivos, que explican cómo se resuelven técnicamente ciertos puntos; y las perspectivas o renders, que son representaciones en 3D utilizadas para visualizar el resultado final de un proyecto.
¿Cuánto dura la carrera de dibujo arquitectónico?
En España, la formación más directa para convertirse en dibujante arquitectónico se obtiene a través de la Formación Profesional de Grado Superior. La opción más habitual es el ciclo de Técnico Superior en Proyectos de Edificación, que tiene una duración de dos años (2.000 horas lectivas) y se imparte en institutos públicos y centros privados acreditados. Este programa incluye cursos especializados para aprender a elaborar planos técnicos, manejar software de dibujo como AutoCAD o Revit y colaborar en proyectos arquitectónicos siguiendo la normativa vigente. También existe una opción similar en el ámbito de la obra civil. No se trata de una carrera universitaria, sino de una titulación técnica especializada que habilita para trabajar en estudios de arquitectura, empresas de construcción o administración pública. Para quienes deseen profundizar más allá del dibujo técnico y convertirse en arquitectos, la vía universitaria es el Grado en Arquitectura, que tiene una duración superior, de cinco a seis años, y conlleva estudios mucho más amplios.
¿Qué se necesita para hacer un dibujo arquitectónico?
Para hacer un dibujo arquitectónico se necesita una combinación de conocimientos técnicos, herramientas adecuadas y precisión en la ejecución. Es fundamental tener dominio de la geometría, las escalas y las normas de representación gráfica utilizadas en arquitectura. También es necesario conocer los distintos tipos de planos y saber interpretarlos, ya que los dibujos deben ajustarse a convenciones estandarizadas para que puedan ser entendidos por cualquier profesional del sector. En cuanto a herramientas, tradicionalmente se utilizaban lápices técnicos, escalímetros, reglas y papel vegetal, aunque hoy en día es imprescindible manejar programas de diseño asistido por ordenador como Cedreo, AutoCAD, Revit o SketchUp. Además, es importante desarrollar habilidades como la atención al detalle, la organización y la capacidad para traducir ideas espaciales en representaciones gráficas precisas y claras.
¿Qué hace un dibujante arquitectónico?
Un dibujante arquitectónico, también conocido como delineante o proyectista, se encarga de traducir las ideas y conceptos de arquitectos e ingenieros en planos técnicos detallados. Su trabajo consiste en elaborar representaciones gráficas de edificios, espacios y estructuras, siguiendo criterios técnicos y normativos. A partir de bocetos, instrucciones verbales o esquemas iniciales, el dibujante genera planos que servirán como base para la construcción o el desarrollo de un proyecto. Utiliza programas de diseño 2D y 3D, y en muchos casos también participa en la elaboración de modelos digitales y presentaciones visuales. Además de crear nuevos planos, el dibujante también revisa, corrige y actualiza documentación técnica a lo largo de las distintas fases del proyecto. Su labor es esencial para garantizar que las ideas arquitectónicas se materialicen con claridad, precisión y viabilidad técnica.
¿Son diferentes los Dibujos Arquitectónicos para Edificios Comerciales respecto a los Residenciales?
Sí, los dibujos arquitectónicos para edificios comerciales suelen diferenciarse bastante de los destinados a viviendas. Los proyectos comerciales requieren diseños más complejos para adaptarse a espacios más amplios, instalaciones específicas y normativas más estrictas. Estos planos suelen incluir detalles adicionales como sistemas de protección contra incendios, accesibilidad, y sistemas mecánicos adaptados al uso comercial.
¿Qué es una Sección en un Plano Arquitectónico?
Una sección (o sección transversal) en un plano arquitectónico es una representación vertical de un corte imaginario en el edificio, como si se hubiera abierto por la mitad. Este tipo de dibujo muestra las características internas del inmueble, revelando la relación entre distintos niveles, estancias y elementos estructurales, lo que proporciona una visión clara de la organización espacial y constructiva del proyecto.