Logiciel permis de construire
Créez vos permis de construire facilement et en moins de 2h avec Cedreo !
Créez toutes vos pièces graphiques avec un seul logiciel en moins de 2h
Cedreo vous permet de créer votre dossier de demande d’autorisation d’urbanisme pour vos projets de construction et de rénovation de maison.
Plans
Créez un projet complet incluant l’ensemble des plans nécessaires :
- Plans de masse
- Plans de niveaux
- Plans de coupe
- Plans de façade
- Plans de toiture

Visuels 3D
Générez les différentes vues 3D qui permettent de fournir la vision globale du projet dans son environnement :
- Rendus 3D photoréalistes du projet dans son environnement réel
- Rendus 3D extérieur de la maison et de l’aménagement paysager avec un arrière-plan proposé dans Cedreo

Documents de permis de construire
Organisez l’ensemble de vos pièces dans le dossier de permis de construire :
- Dossier à votre image avec votre logo et aux couleurs de votre entreprise
- Document téléchargeable en pdf

Un logiciel intuitif pour tracer vos plans
Une interface simple à utiliser :
- Le plan de masse et les plans de niveaux sont tracés facilement grâce à l’import de plans.
- Le magnétisme permet d’être guidé pour reproduire les limites de propriété et les murs du bâti.
- La fenêtre de visualisation en 3D permet de voir le projet prendre vie en 3D au fur et à mesure du tracé.
Des fonctionnalités gain de temps :
- Création du relief sur le terrain en quelques clics grâce aux points ou lignes d’élévation
- Murs de soutènements et le talutage automatiques
- Ajout des clôtures automatiques qui suivent la pente du terrain
- Paramétrages de valeurs par défaut (angle de toit, épaisseur de murs…).

Une création de plans de coupe et façade simple
Les plans de coupe sont prêts en quelques clics :
- Le trait de coupe est placé sur le bâti en 1 clic pour créer le plan.
- Les cotes et annotations utiles pour préciser les informations du projet sont ajoutées facilement.
- Les arbres et autres symboles peuvent apparaître sur le plan
Des fonctionnalités gain de temps pour les plans de façade :
- Les façades sont détectées automatiquement, le cadrage peut être ajusté.
- La fenêtre de prévisualisation permet de s’assurer du résultat en temps réel et d’ajuster les paramètres si besoin.

Les visuels 3D pour présenter la maison dans son environnement
La personnalisation de l’arrière-plan :
- L’intégration de la maison sur ce terrain est rapide après avoir importé une photo du terrain. Il suffit de positionner l’image et de régler la position du soleil.
Un rendu 3D photoréaliste généré en 5 minutes :
- La création de visuels 3D est très rapide, une fois la maison tracée et aménagée.
- Cedreo est un logiciel 100% en ligne, vous n’avez pas besoin d’un ordinateur puissant pour générer vos visuels. Il ne vous faut qu’une connexion à internet.

Un logiciel pour permis de construire tout-en-un pour préparer vos dossiers
Tous vos documents sont stockés dans un même logiciel pour gagner du temps :
- Importez les pièces telles que le plan de situation ou les photos de l’environnement proche et lointain du terrain.
- Insérez-les sur votre document de permis de construire.
La mise à jour des plans dessinés dans Cedreo est automatique :
- Si vous modifiez les plans (tracé, ouvertures, revêtements…) ils seront automatiquement mis à jour sur votre document de permis de construire. Vous n’avez pas à les remplacer manuellement.

Toutes les fonctionnalités indispensables pour créer vos permis de construire rapidement
Tracez vos plans facilement grâce à une prise en main rapide du logiciel et à des fonctionnalités intuitives. Gagnez du temps sur chaque nouveau projet de construction, d’extension, ou rénovation.
Import de plans
Importez le plan de cadastre ou géomètre aux formats pdf, jpeg, png, dwg ou dxf et utilisez-le comme calque afin de tracer votre terrain naturel en incluant les informations utiles à votre plan de masse.
Modélisation du terrain rapide
Le tracé intuitif du terrain et la gestion de l’altimétrie grâce aux points ou lignes d’élévation permettent de modéliser les terrains en pente et d’y implanter la maison facilement, créer des murs de soutènement et les zones d’accès.
Clôtures automatiques
Une fois le relief créé, les clôtures peuvent être tracées et sont personnalisables (grillage, panneaux, avec ou sans muret, hauteur totale de clôture…). Elles suivent automatiquement les pentes du terrain.
Insertion de toiture simple
Le toit peut être inséré automatiquement puis modifié manuellement pour ajouter des noues, lucarnes, gerbières et personnalisé : épaisseur, pente, revêtement…
Tableaux de surfaces automatiques
Les tableaux de surfaces se mettent à jour automatiquement pour indiquer la surface plancher, la surface habitable, la surface utile et la répartition des surfaces vitrées.
Synchronisation des modifications
Dès que vous modifiez le plan (tracé, ouvertures, revêtements), les plans de coupes, façades et le dossier de permis de construire comprenant ces plans sont mis à jour automatiquement.
Symboles, cotes et annotations
Ajoutez les symboles utiles sur le plan de masse, les réseaux et canalisations et annotez l’ensemble de vos plans pour préciser vos pièces graphiques.
Impression à l’échelle en 300dpi
Téléchargez vos plans à l’échelle en 300dpi pour une excellente qualité d’impression et vos dossiers de déclaration de travaux ou permis de construire en pdf.
Collaboration facilité entre les membres de l’équipe
Les plans et les dossiers de permis de construire sont accessibles par les commerciaux et le bureau d’études.
Exemples de pièces graphiques créées avec Cedreo
Les constructeurs de maisons individuelles apprécient la simplicité de prise en main du logiciel pour plan de permis de construire Cedreo. Le panel de projets qui peuvent être créés est très varié : construction de maisons, extension, garage, terrasse, rénovation… ce qui en fait l’un des logiciels les plus complets du marché. Cedreo offre tous les outils nécessaires à la demande d’urbanisme : déclaration préalable de travaux, permis de construire. Voici quelques exemples de plans, rendus 3D et dossiers de présentation :

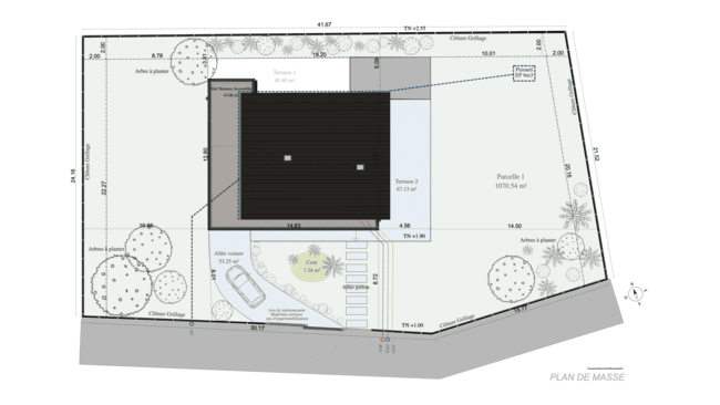
Plan de masse

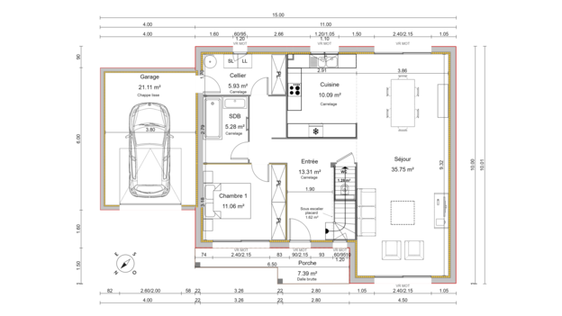
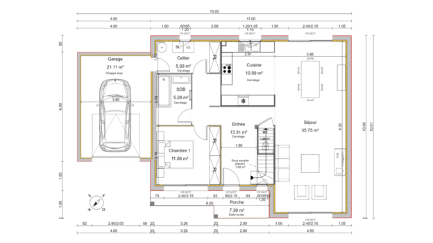
Plan de niveau RDC

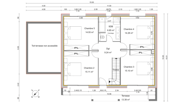
Plan de niveau étage

Plan de coupe

Plan de façade

Plan de façade d’une rénovation

Rendu 3D extérieur

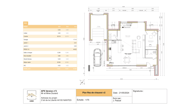
Document de permis de construire

Document de permis de construire
Cedreo, le logiciel pour permis de construire intuitif et complet
Ce qu’ils pensent de Cedreo
« Cedreo devient le logiciel standard du marché, si on ne l’a pas, on ne pourra bientôt plus suivre. »
« Nous avons gagné en fluidité dans la relation avec nos clients. Je ne sais pas comment je ferais sans Cedreo ! »