Un seul logiciel pour tous vos documents
De l’avant-projet au dépôt de permis de construire, concevez et stockez tous vos documents au même endroit.

Plan de masse
Importez un fichier dwg ou dxf, modélisez un terrain en moins de 20 minutes et générez un plan de masse à l’échelle.
En savoir plus
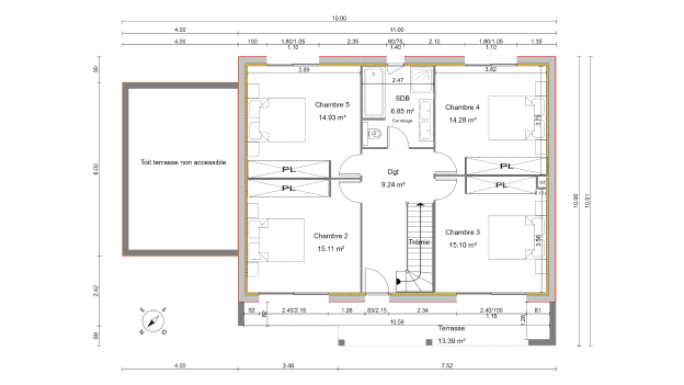
Plan de niveaux
Importez un plan existant, tracez intuitivement en 2D, visualisez instantanément en 3D et téléchargez vos plans complets à l’échelle.
En savoir plus
Plan de coupe
Créez des coupes sur votre plan, prévisualisez le résultat simultanément et ajoutez très simplement des cotes et annotations.
En savoir plus
Plan de façade
Sélectionnez simplement la vue adaptée et personnalisez-la avec des éléments à afficher/masquer, des cotes et des annotations.
En savoir plus
Plan de toiture
Ajoutez un plan de toiture à votre projet en un clic. Affichez les pentes, les cotes, la rose des vents et visualisez le résultat simultanément. Téléchargez à l’échelle, au format et dans la qualité désirés.
En savoir plus
Documents de présentation
Concevez vos documents de présentation APS et PC dans Cedreo. Ajoutez les plans nécessaires à votre projet, des images, des photos, et personnalisez vos documents.
En savoir plus
Tableau de surfaces
Les surfaces de vos projets sont automatiquement calculées dans Cedreo et compilées dans un tableau téléchargeable avec les surfaces au sol par pièce, déclinées par étage, ainsi que les surfaces du projet et l’orientation des surfaces vitrées.

Rendus 3D extérieurs
Obtenez en quelques minutes des rendus photoréalistes des extérieurs de vos projets intégrés dans leur environnement réel.
En savoir plus
Rendus 3D intérieurs
Aidez vos clients à se projeter avec des rendus réalistes. Personnalisez vos projets en choisissant parmi plus de 6000 revêtements et objets 3D.
En savoir plus
Plan 3D
Obtenez en quelques minutes un plan 3D de votre projet, sur fond blanc, pour une meilleure visualisation des espaces intérieurs par vos clients.
En savoir plus
Notice descriptive
Le chiffrage de votre avant-projet Cedreo se fait en temps réel. Le détail des éléments renseignés est mis à jour automatiquement dans la notice descriptive.
En savoir plus
Déboursé
Consultez et téléchargez le déboursé de votre projet Cedreo avec le quantitatif et la décomposition du prix de revient.
En savoir plusC’est facile à utiliser.
Mais vous pouvez toujours compter sur le support Cedreo.
Pour une prise en main encore plus rapide.
Parce que vous pouvez toujours aller plus loin et gagner du temps.
“L’outil indispensable pour vendre des maisons”
Un logiciel simple à maîtriser qui aboutit à des plans de niveaux et visuels 3D réalistes et séduisants. Les prospects sont ravis de la présentation et par voie de conséquence les conseillers commerciaux sont aidés dans leurs démarches et dans leurs ventes. Le support de CEDREO est dynamique sur la formation et l’accompagnement.
Lancez-vous !
Lancez-vous et gagnez du temps dans la conception de vos projets de construction ou de rénovation, du R1 au permis de construire.
Consulter les tarifs