Concevoir un plan électrique ou un schéma électrique est un exercice à la fois technique et stratégique. Chaque oubli, chaque erreur d’interprétation peut entraîner des modifications en cours de chantier, des retards ou des installations non conformes.
À l’inverse, un plan bien réalisé, qui anticipe tous les besoins du futur occupant (y compris ceux qu’il n’a pas exprimés) est une véritable preuve de professionnalisme. Il valorise votre rigueur, renforce la confiance de vos clients et de vos partenaires. Pour les professionnels de la construction, c’est un levier d’efficacité à ne pas sous-estimer.
Vous êtes constructeur de maison individuelle, maître d’œuvre ou professionnel de la rénovation ? L’électricité n’est pas votre cœur de métier, mais vous souhaitez :
- Gagner du temps ?
- Sécuriser vos projets ?
- Améliorer la qualité de vos livrables ?
Dans cet article, découvrez comment aborder plus sereinement vos plans électriques. Adoptez les bonnes pratiques, évitez les erreurs courantes, et simplifiez-vous la vie avec des outils intuitifs vraiment adaptés à votre activité.
Points clés à retenir
- Le plan électrique représente l’ensemble de l’installation électrique d’un bâtiment. Il précise sur un plan de niveau l’emplacement de chaque équipement : prises, interrupteurs, luminaires, tableau, appareils spécifiques.
- Un plan électrique bien réalisé est un outil de communication à part entière. Il sécurise à la fois la prise de décision des clients et la bonne exécution sur le chantier.
- Dans le secteur du logement, il doit respecter la norme NF C 15-100. Mais il peut aller au-delà des exigences réglementaires et répondre aux besoins réels (et futurs) de vos clients.
- Un plan clair limite les erreurs d’exécution : la lisibilité et la cohérence des documents sont aussi importantes que la justesse technique du contenu. Pour qu’un plan soit compris immédiatement, chaque élément représenté doit suivre un code graphique constant.
- Cedreo est un logiciel 100 % en ligne pensé pour simplifier le quotidien des professionnels. Constructeurs de maisons individuelles, maîtres d’œuvre ou spécialistes de la rénovation, Cedreo vous aide à concevoir rapidement des plans électriques clairs et faciles à exploiter sur le chantier.
Comment se présente un plan électrique ?
Définition et objectifs d’un plan électrique de maison
Le plan électrique est la représentation visuelle de toute l’installation électrique d’un projet. Il indique la disposition des prises de courant, des points lumineux et des commandes associées, les appareils spécifiques alimentés, etc.

Bien que schématique, c’est un véritable outil technique aux nombreux objectifs :
- orienter le client dans sa réflexion
- anticiper (et optimiser) le cheminement des câblages
- chiffrer les travaux le plus précisément possible
- guider l’électricien sur le chantier lors de l’implantation des équipements
- vérifier la conformité d’une installation électrique avec les normes en vigueur (sécurité des personnes et nombre d’équipements suffisant par pièce)
Plans électriques et schémas électriques : y a-t-il une différence ?
Souvent confondus par abus de langage, le plan électrique et le schéma électrique n’ont pas exactement la même fonction, ni les mêmes règles de représentation.
Le plan électrique est une représentation spatiale. Il précise dans chaque pièce la position de tous les appareillages électriques : prise électrique, interrupteur, luminaire, tableau électrique, électroménager spécialisé (lave-vaisselle, lave-linge). Son objectif ? Aider à l’implantation physique sur le chantier.
Le schéma électrique est quant à lui une représentation fonctionnelle. Il indique comment les éléments sont connectés entre eux, sans détailler leur emplacement géographique. Il existe plusieurs types de schémas :
- le schéma unifilaire : il montre les liaisons entre les circuits, protections, et équipements à l’aide d’une ligne unique par circuit
- le schéma multifilaire : plus détaillé, il trace avec précision toutes les connexions fil à fil
- le schéma architectural : plus proche du plan, il est cependant axé sur la logique des raccordements, des circuits et branchements

Le plan électrique vous indique « où », puis le schéma précise « comment ». Ces deux modes de représentation sont complémentaires.
Quels éléments intégrer dans un plan électrique de maison, et comment les représenter ?
Bien représenter les équipements : symboles électriques et normes
En France, la norme NF C 15-100 n’impose pas de symboles électriques obligatoires. En revanche, elle exige que tous vos plans soient parfaitement lisibles, cohérents et exploitables par les professionnels du secteur.
Pourquoi utiliser des symboles électriques standardisés ?
- Moins d’erreurs : une lecture rapide et intuitive réduit les risques de mauvaise interprétation et/ou implantation.
- Plus d’efficacité : tous les intervenants comprennent immédiatement les éléments représentés, sans faire d’allers-retours permanents avec la légende du document.
- Une meilleure communication : les échanges entre professionnels sont facilités grâce à un langage universel.
Un plan électrique ne doit jamais laisser place à l’interprétation. Même si vous êtes libre de choisir vos symboles, ils doivent respecter les conventions de représentation. Et à l’échelle internationale, c’est la norme IEC 60617 qui sert de référence. Elle propose plus de 1 400 symboles électriques, régulièrement mis à jour.
Cedreo intègre une bibliothèque complète de symboles électriques conformes aux conventions d’usage. Prises standards ou spécialisées, points lumineux, tableaux, équipements domotiques : tous les éléments sont prêts à l’emploi et personnalisables. En quelques clics, composez un plan lisible, professionnel et immédiatement exploitable sur le chantier.

Le tableau électrique
Le tableau électrique est le point d’origine de toute l’installation. Il est raccordé à l’arrivée électrique générale du bâtiment, puis il alimente à son tour l’ensemble des circuits de l’habitation (en assurant leur protection).
Dans un logement, sa position doit optimiser au maximum les longueurs de câbles, faciliter les connexions et permettre un accès rapide en cas de besoin. Habituellement, dans les habitations neuves, le tableau électrique est placé à proximité de l’entrée.
Sa représentation graphique ?
Le tableau électrique est généralement symbolisé par un rectangle, dans lequel figure soit un éclair (pour l’électricité), soit l’acronyme « TGBT » (tableau général basse tension).
Les prises de courant
Le nombre et la répartition des prises électriques sont encadrés par la norme NF C 15-100. Elle définit les minimas à respecter pièce par pièce dans une habitation, et précise les circuits spécialisés à prévoir pour les appareils électroménagers à forte puissance (lave-vaisselle, cuisson, lave-linge).
Le plan électrique doit faire apparaître le nombre et l’emplacement des prises, mais aussi leur type, éventuellement leur puissance et la hauteur d’implantation si elles sont particulières.
Leur représentation graphique ?
- Une prise de courant standard est souvent représentée par un cercle contenant trois points en triangle (phase, neutre, terre).
- Une prise spécialisée est représentée de la même manière, mais accompagnée d’une annotation précisant son usage (PC LV, LL, FOUR, etc.).
Les points lumineux et interrupteurs de commande
L’éclairage dépend des volumes, de l’apport en lumière naturelle et du mode de vie de chacun. Sur le plan électrique, chaque point lumineux représenté (plafonnier, spot, applique) est associé à un système de commande (simple allumage, va-et-vient, télérupteur, détection) dont la position doit être ergonomique et cohérente avec le flux de circulation dans les pièces.
Leur représentation graphique ?
- Le plafonnier est souvent représenté par un cercle simple (parfois barré pour plus de clarté).
- L’applique murale apparaît sous forme de demi-cercle accolé à une paroi.
- L’interrupteur simple allumage est représenté par un cercle traversé par un trait oblique (deux traits obliques pour un double allumage, et un cercle barré pour le va-et-vient).
- Un interrupteur avec variateur peut comporter, en plus du symbole de base, une flèche orientée vers l’intérieur.
Les équipements spécifiques
L’installation électrique d’une maison comporte bien sûr des prises de courant et des points lumineux. Mais elle englobe aussi de nombreux équipements complémentaires indispensables au bon fonctionnement d’un logement.
Chauffage, ventilation, système d’alarme, domotique, volets roulants ou réseaux de communication : tous ces dispositifs exigent une alimentation dédiée, parfois des dispositifs de protection et doivent figurer sur le plan électrique.
Leur représentation graphique ?
Pour une parfaite lisibilité du schéma général, chaque type d’équipement a son propre symbole sur le plan électrique. La plupart du temps, ce sont les annotations écrites qui aident à identifier la nature d’un appareil ou d’une alimentation. Par exemple :
- Le chauffe-eau électrique est souvent matérialisé par un cercle avec des hachures et l’annotation « CE » ou « ECS » (eau chaude sanitaire).
- Une alimentation électrique est identifiable grâce à un petit éclair fléché accompagné du nom de l’appareil à alimenter (volet roulant, store motorisé).
Les circuits
Chaque fonction électrique (éclairage, prise, chauffage, ventilation, domotique) est associée à un circuit.
Un circuit correspond à une « boucle » qui alimente un ou plusieurs équipements, protégée par un disjoncteur. Chaque circuit permet de contrôler, isoler et sécuriser une portion précise de l’installation électrique. Voici quelques règles de base à respecter :
- éclairage : 8 points lumineux maximum par circuit de 10A ;
- prises classiques : 8 PC maximum par disjoncteur de 16A ;
- prises spécialisées (plaques de cuisson, ballon ECS) : chacun est protégé par un disjoncteur individuel, adapté à l’appareil.
Leur représentation graphique ?
Sur un plan d’électricité de maison, il est impossible de dessiner tout le câblage entre les équipements et le tableau sans rendre l’ensemble illisible. Pour éviter de surcharger le schéma, il est d’usage de représenter uniquement les circuits d’éclairage : c’est-à-dire de relier les points lumineux aux interrupteurs qui les commandent.
Pour tous les autres circuits, d’autres possibilités existent si vous souhaitez matérialiser les connexions (ce n’est pas obligatoire sur un plan d’implantation) :
- utiliser des codes couleur selon le type de circuit ou la zone (salle de bain, salon, etc.) ;
- mettre en place un système de numérotation associé à une légende ou un tableau récapitulatif.
Comment créer un plan d’électricité cohérent et lisible ?
Les étapes pour construire un plan électrique professionnel
Pour un plan électrique bien réalisé, il ne suffit pas de placer des symboles au bon endroit et de respecter la réglementation.

Le processus est un peu plus complet que cela ! Il mobilise bien sûr vos compétences techniques, mais pas seulement ! Votre capacité d’anticipation et votre sens de la communication vous seront aussi très utiles. Voici les principales étapes à suivre :
- Interroger le client sur ses habitudes de vie : travaille-t-il souvent à domicile ? Utilise-t-il de l’électroménager spécifique ? Prévoit-il un usage fréquent de certains espaces comme un atelier ? Comprendre ses besoins peut vous aider à anticiper certains équipements et contraintes qu’il n’est pas capable de verbaliser du point de vue technique.
- Choisir un outil de dessin adapté : privilégiez une solution simple et intuitive, adaptée à votre activité et à vos méthodes de travail. L’outil sélectionné doit vous faire gagner du temps au quotidien, et non l’inverse.

- Positionner les appareillages et équipements électriques : placez sur les plans de niveaux les prises, interrupteurs, points lumineux et appareils à partir de la liste des besoins recueillis précédemment. Ajoutez les équipements techniques annexes indispensables au logement comme la VMC, les radiateurs électriques, les alimentations diverses.

- Vérifier la conformité à la norme NF C 15-100 : assurez-vous que chaque pièce dispose bien du matériel électrique minimal requis par la norme, et que les volumes de sécurité soient respectés à proximité des points d’eau de la salle de bains.
- Soigner la lisibilité et partager pour validation : procédez toujours à une relecture attentive, puis ajoutez toutes les indications qui vous semblent indispensables à une parfaite compréhension du document. Par exemple, prévoyez une légende, ajoutez des annotations directement sur le plan, précisez les hauteurs de pose, ajustez la taille des symboles à la mise en page, etc.
Pour aller plus loin : consultez notre article dédié et complet pour réaliser un schéma électrique en ligne en 5 étapes.
4 erreurs fréquentes à éviter dans la présentation de vos plans électriques
En électricité, la lisibilité des documents est aussi importante que leur justesse technique. Voici quelques erreurs fréquentes à éviter :
1. Utiliser des symboles inadaptés
Des symboles non normés, trop petits ou trop similaires compliquent la lecture. Ils obligent l’électricien à consulter en permanence votre légende pour comprendre le schéma d’installation électrique. Préférez des symboles reconnus, et toujours adaptés à l’échelle du plan pour rester lisibles.
2. Surcharger visuellement le plan
À trop vouloir en dire sur une seule page, vous finissez par perdre en clarté. Et plus les documents semblent « compliqués » à comprendre, moins ils sont lus !
Évitez que les symboles se superposent ou s’agglutinent dans les pièces techniques comme le plan de travail de la cuisine ou la salle de bains. Préférez des schémas complémentaires pour ces pièces denses en équipements.
3. Oublier la légende ou les annotations
Sans légende claire ni annotations, vos clients risquent de valider un plan qu’ils ne comprennent pas, puis de revenir dessus en plein chantier. Pour éviter cela, ajoutez des annotations écrites à la marge du plan lorsque vous les pensez nécessaires. Indiquez systématiquement les hauteurs, fonctions, ou particularités des équipements.
4. Oublier la cohérence entre documents
Changer de symbole ou de code couleur d’un projet à l’autre, c’est induire vos partenaires en erreur. Adoptez une charte graphique claire et constante, surtout si vous êtes plusieurs à dessiner. Une présentation plus uniforme est à la fois une marque de sérieux, et un vrai gain de temps sur le terrain.
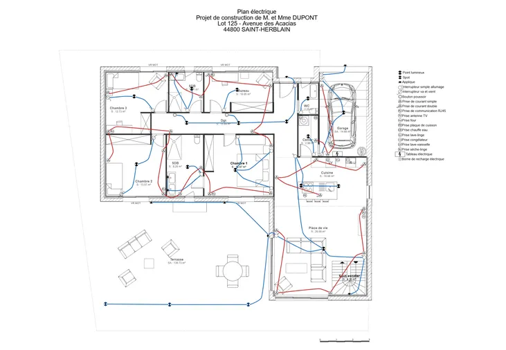
Exemples de plans électriques de maison
Vous connaissez désormais toutes les étapes pour concevoir un plan électrique complet et conforme. Mais concrètement, à quoi doivent ressembler vos pièces graphiques ?
Pour vous inspirer et passer de la théorie à la pratique, voici quelques exemples de plans électriques de maison réalisés à l’aide du logiciel en ligne Cedreo :



Une installation électrique qui pense au futur : les bonnes pratiques
Les usages évoluent, se modernisent, les occupants changent et les besoins technologiques se multiplient. Télétravail, équipements connectés, véhicules électriques : une installation électrique bien conçue doit pouvoir s’adapter à ces transformations, sans nécessiter de gros travaux quelques années plus tard.
Pour éviter les modifications lourdes, il faut, dès la conception :
- Prévoir des circuits de réserve dans le tableau : intégrer des lignes non utilisées immédiatement dans le tableau électrique permet d’ajouter des équipements sans difficulté.
- Ajouter quelques prises supplémentaires : la norme NF C 15-100 fixe un nombre minimum de prises à respecter dans chaque pièce, mais rien n’interdit d’en prévoir davantage. Quelques prises supplémentaires évitent d’empiler les multiprises, améliorent le confort et sécurisent l’installation électrique du logement.
- Anticiper des emplacements stratégiques : positionner une prise renforcée dans le garage, installer une gaine technique en attente près du portail, ou doubler les prises dans le séjour sont des gestes simples et peu coûteux qui évitent des travaux plus importants dans l’avenir.
- Suivre les tendances : avec le développement de la fibre et des équipements connectés, une installation électrique sans réseau RJ45 étendu devient rapidement obsolète. Le télétravail fait aussi partie de la vie quotidienne des familles. Il est donc pertinent d’ajouter d’office un « poste de travail » dans le salon ou dans une chambre.
Cedreo : la solution idéale pour vos plans électriques

Cedreo est un logiciel 100 % en ligne qui vous permet de créer vos plans électriques directement à partir de votre représentation 2D. Grâce à une bibliothèque de symboles conformes, régulièrement mise à jour, positionnez rapidement vos équipements électriques.
Quelques fonctionnalités utiles au quotidien :
- Ajout de symboles standardisés via glisser-déposer depuis une bibliothèque complète (prise électrique, va-et-vient, point lumineux).
- Personnalisation possible des symboles électriques selon votre charte graphique interne et vos habitudes de travail.

- Modélisation simplifiée de lignes courbes pour représentation des circuits d’éclairage.

- Ajout de symboles récurrents en favoris pour gagner du temps sur vos prochaines opérations.

- Annotations (type, hauteur, puissance, circuit) et ajout de légendes sur vos documents de présentation.

- Visualisation immédiate de l’implantation électrique en 3D pour identification des incohérences.
- Export au format PDF, A4 ou A3, avec mise en page professionnelle.
FAQ – Plan électrique
Quelle est la différence entre un plan électrique et un schéma électrique ?
Le plan électrique indique les emplacements des équipements (prises, interrupteurs, points lumineux) dans le logement. Le schéma électrique détaille les connexions et les branchements entre les éléments (câblage, protections, référence des circuits).
Quelle norme faut-il respecter pour un plan électrique ?
En habitation, le plan électrique doit être conforme à la norme NF C 15-100. Elle impose un nombre minimum de prises électriques, les volumes de sécurité, les circuits spécialisés et la protection de l’installation.
Que doit contenir un plan électrique ?
Une installation électrique complète fait apparaître : le tableau général, les prises (standards et spécialisées), les interrupteurs, les points lumineux, ainsi que les équipements spécifiques (VMC, chauffage, domotique, etc.). Il doit aussi comporter une légende, une échelle, et éventuellement un code couleur pour la lisibilité.
Existe-t-il des règles pour représenter les symboles électriques ?
Oui. Même si la NF C 15-100 ne définit pas une codification unique, les symboles doivent être clairs, homogènes, et conformes aux conventions couramment utilisées. L’usage d’une charte graphique interne est recommandé pour garder une cohérence d’un projet à l’autre.
Peut-on faire un plan électrique avec Cedreo ?
Absolument. Cedreo permet de créer des plans de niveau complets et d’y insérer tous les équipements électriques à l’aide d’une bibliothèque de symboles normés. Vous pouvez ensuite exporter un plan clair et prêt à l’emploi au format PDF.